Set on a stunning, 1.95 Acre elevated site overlooking the Foyle River, on the outskirts of Greencastle.
This property boasts excellent potential and has been vacant for some time, now requiring internal redecorative works, and landscaping to the grounds.
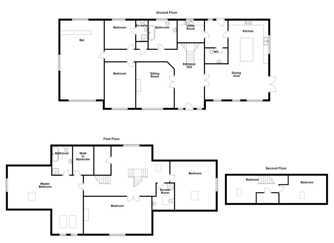
The family home spans to an impressive 357 sqm/ 3,854 sq.ft over three floors, and boasts five bedrooms, five bathrooms, and three lounges, one complete with a built in bar area.
Proof of funds are required for any offers on this property, and viewings will only be, by way of strict open viewing time slots in line with covid regulations.
Specifications:
Entrance Hallway: 3.16m x 7.1m
Tiled flooring. Feature split staircase. Radiators.
Sitting Room: 4m x 4.9m
Wooden flooring. Seaviews. TV Point. Open fireplace. Radiator.
Kitchen/ Dining Room: 6.6m x 3.9m
Wooden flooring. Open fireplace. Seaviews. Radiator. TV Point.
High and Low level shaker style kitchen units with granite worktop. Island unit with ample storage and granite worktop.
Stainless steel sink. Rangemaster oven.
Rear Hall: 2.2m x 2.9m
Tiled flooring. Rear exit door. Radiator.
Utility: 2.8m x 2.3m
High and low level units. Stainless steel sink. Radiator.
WC: 1.3m x 2.23m
White wc, whb. Radiator.
Bathroom: 2.9m x 3m
Fully tiled flooring and walls. White wc, whb. Chrome vertical radiator. Claw foot, standalone bathtub. Shower.
Hotpress: 6.7m x 1.2m
Bedroom 1: 4.9m x 3.2m
Wooden flooring. Radiator.
Bedroom 2: 3m x 3.3m
Wooden flooring. Radiator.
Ensuite: 1.2m x 2.2m
White wc, whb, shower. Fully tiled.
BAR/ Lounge: 4.4m x 8.5m
Wooden cladding to wall surround.Double doors leading to the front. Radaitors. Wooden flooring. Fully shelved bar. Recessed lighting.
First Floor
Hallway: 5.9m x 5.3m
Wooden flooring.
Hotpress: 1.7m x 3m
Lounge: 6.9m x 4m
Seaviews. Wooden flooring. Fireplace. Radiator.
Bedroom 3: 8.1m x 6.2m
Master Suite with lounge area. Wooden flooring. Two velux windows with seaviews. Damp ingress, requiring attention. Recessed storage to side attic.
Walk in wardrobe: 3m x 2.3m
Ensuite: 2.2m x 3m Fully tiled, white wc, whb. Electric shower. Velux window. Radiator.
Bedroom 4: 4.9m x 5.2m
Seaviews. Wooden flooring. Radiator. Recessed storage to side attic.
Bathroom: 2.8m x 2.3m
Fully tiled. Radiator to wall. Electric shower. White wc, whb. Velux window.
Second Floor/ Roof space.
Attic Space Area 1: 2.9m x 6.6. Unfloored. Radiator.
Attic Space / Bedroom Area 2: 2.9m x 5m. Unfloored. Radiator.
Please Note:
The driveway leading down to this property is very steep and overgrown, please take caution on entry.
Submit an enquiry and someone will be in contact shortly.
By setting a proxy bid, the system will automatically bid on your behalf to maintain your position as the highest bidder, up to your proxy bid amount. If you are outbid, you will be notified via email so you can opt to increase your bid if you so choose.
If two of more users place identical bids, the bid that was placed first takes precedence, and this includes proxy bids.
Another bidder placed an automatic proxy bid greater or equal to the bid you have just placed. You will need to bid again to stand a chance of winning.